Попробуйте жить в экологичном и стильном доме из контейнера. Они доступны по цене, прочные и легко подстраиваются под ваши потребности, так что вы сможете создать пространство, которое идеально вам подходит.
Узнать больше
О домах из контейнеров
Концепция домов-контейнеров — это современное и экологичное решение для жизни. Наши дома отличаются мобильностью, энергоэффективностью и быстрой возводимостью. Мы стремимся сделать качественное жильё доступным для всех.
Посмотрите наши проекты
У нас есть много разных проектов домов из контейнеров, которые мы спроектировали и построили. Вы можете посмотреть на разные стили, планировки и функции, чтобы найти вдохновение для своего будущего дома.
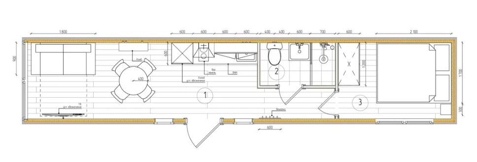
Дом-контейнер для молодой семьи
Уютный дом с просторной гостиной и двумя спальнями, созданный из двух соединённых контейнеров.
Гостевой дом-контейнер
Компактный домик для гостей с одной спальней и небольшой кухней, построенный из одного контейнера.
Офис в доме-контейнере
Современный офис с открытой планировкой и большим количеством естественного света, сделанный из трёх соединённых контейнеров.
скелет каркас из 40 футового контейнера высотой 2,9 метра качественная отделка под ключ 3 варианта отопления витражное остекление сан.узел под ключ (бойлер,раковина,унитаз) камин на дровах утепление ППУ, комфортко при -40/+40 фасад на выбор по всей площади дома тройной стеклопакет приточка свежего воздуха,вытяжка окна на фасадной стороне сауна
доп.комплектация мебель согласно планировке GSM управление системой отопления видеонаблюдение сплит-система коммуникации под стиральную машину
скелет каркас из 40 футового контейнера высотой 2,9 метра качественная отделка под ключ 3 варианта отопления витражное остекление сан.узел под ключ (бойлер,раковина,унитаз) камин на дровах утепление ППУ, комфортко при -40/+40 фасад на выбор по всей площади дома тройной стеклопакет приточка свежего воздуха,вытяжка окна на фасадной стороне сауна
доп.комплектация мебель согласно планировке GSM управление системой отопления видеонаблюдение сплит-система коммуникации под стиральную машину.
скелет каркас из 40 футового контейнера высотой 2,9 метра качественная отделка под ключ 3 варианта отопления витражное остекление сан.узел под ключ (бойлер,раковина,унитаз) камин на дровах утепление ППУ, комфортко при -40/+40 фасад на выбор по всей площади дома тройной стеклопакет приточка свежего воздуха,вытяжка окна на фасадной стороне сауна
доп.комплектация мебель согласно планировке GSM управление системой отопления видеонаблюдение сплит-система коммуникации под стиральную машину
скелет каркас из 40 футового контейнера высотой 2,9 метра качественная отделка под ключ 3 варианта отопления витражное остекление сан.узел под ключ (бойлер,раковина,унитаз) камин на дровах утепление ППУ, комфортко при -40/+40 фасад на выбор по всей площади дома тройной стеклопакет приточка свежего воздуха,вытяжка окна на фасадной стороне сауна
доп.комплектация мебель согласно планировке GSM управление системой отопления видеонаблюдение сплит-система коммуникации под стиральную машину
скелет каркас из 40 футового контейнера высотой 2,9 метра качественная отделка под ключ 3 варианта отопления витражное остекление сан.узел под ключ (бойлер,раковина,унитаз) камин на дровах утепление ППУ, комфортко при -40/+40 фасад на выбор по всей площади дома тройной стеклопакет приточка свежего воздуха,вытяжка окна на фасадной стороне сауна
доп.комплектация мебель согласно планировке GSM управление системой отопления видеонаблюдение сплит-система коммуникации под стиральную машину
скелет каркас из 40 футового контейнера высотой 2,9 метра качественная отделка под ключ 3 варианта отопления витражное остекление сан.узел под ключ (бойлер,раковина,унитаз) камин на дровах утепление ППУ, комфортко при -40/+40 фасад на выбор по всей площади дома тройной стеклопакет приточка свежего воздуха,вытяжка окна на фасадной стороне сауна
доп.комплектация мебель согласно планировке GSM управление системой отопления видеонаблюдение сплит-система коммуникации под стиральную машину
скелет каркас из 40 футового контейнера высотой 2,9 метра качественная отделка под ключ 3 варианта отопления витражное остекление сан.узел под ключ (бойлер,раковина,унитаз) камин на дровах утепление ППУ, комфортко при -40/+40 фасад на выбор по всей площади дома тройной стеклопакет приточка свежего воздуха,вытяжка окна на фасадной стороне сауна
доп.комплектация мебель согласно планировке GSM управление системой отопления видеонаблюдение сплит-система коммуникации под стиральную машину
скелет каркас из 40 футового контейнера высотой 2,9 метра качественная отделка под ключ 3 варианта отопления витражное остекление сан.узел под ключ (бойлер,раковина,унитаз) камин на дровах утепление ППУ, комфортко при -40/+40 фасад на выбор по всей площади дома тройной стеклопакет приточка свежего воздуха,вытяжка окна на фасадной стороне сауна
доп.комплектация мебель согласно планировке GSM управление системой отопления видеонаблюдение сплит-система коммуникации под стиральную машину
скелет каркас из 40 футового контейнера высотой 2,9 метра качественная отделка под ключ 3 варианта отопления витражное остекление сан.узел под ключ (бойлер,раковина,унитаз) камин на дровах утепление ППУ, комфортко при -40/+40 фасад на выбор по всей площади дома тройной стеклопакет приточка свежего воздуха,вытяжка окна на фасадной стороне сауна
доп.комплектация мебель согласно планировке GSM управление системой отопления видеонаблюдение сплит-система коммуникации под стиральную машину
скелет каркас из 40 футового контейнера высотой 2,9 метра качественная отделка под ключ 3 варианта отопления витражное остекление сан.узел под ключ (бойлер,раковина,унитаз) камин на дровах утепление ППУ, комфортко при -40/+40 фасад на выбор по всей площади дома тройной стеклопакет приточка свежего воздуха,вытяжка окна на фасадной стороне сауна
доп.комплектация мебель согласно планировке GSM управление системой отопления видеонаблюдение сплит-система коммуникации под стиральную машину
скелет каркас из 40 футового контейнера высотой 2,9 метра качественная отделка под ключ 3 варианта отопления витражное остекление сан.узел под ключ (бойлер,раковина,унитаз) камин на дровах утепление ППУ, комфортко при -40/+40 фасад на выбор по всей площади дома тройной стеклопакет приточка свежего воздуха,вытяжка окна на фасадной стороне сауна
доп.комплектация мебель согласно планировке GSM управление системой отопления видеонаблюдение сплит-система коммуникации под стиральную машину
Вдохновляющие пространства
Посмотрите нашу галерею, где вы найдете фотографии красивых и функциональных домов из контейнеров. Там вы увидите потрясающие интерьеры, экстерьеры и дизайнерские решения, которые меняют представление о современной жизни.
Преимущества домов из контейнеров
Дома из контейнеров - это прочный, доступный и экологичный вариант для тех, кто хочет жить в современном стиле. Их легко настроить под свои потребности, так что вы можете создать дом своей мечты.
Долговечность
Дома из контейнеров имеют прочную конструкцию, которая может служить долгие годы.
Доступность
Строительство дома из контейнеров требует меньше ресурсов и времени, что делает его доступным вариантом для многих людей.
Экологичность
При строительстве домов из контейнеров используются экологически чистые материалы, которые не наносят вреда окружающей среде.
Индивидуальная настройка
Каждый дом из контейнера можно настроить под индивидуальные потребности и предпочтения владельца.
Отзывы наших клиентов
Наконец-то я нашла идеальное место для жизни! Дом-контейнер оказался именно тем, что мне было нужно: компактный, стильный и функциональный.
Анна
Опыт владения домом-контейнером — 1 год
Строительство дома-контейнера было быстрым и легким процессом. Теперь наслаждаюсь своим уютным и современным жилищем.
Максим
Опыт владения домом-контейнером — полгода
Жизнь в доме-контейнере открыла для меня новые горизонты. Это экологично, экономично и очень удобно!
Елена
Опыт владения домом-контейнером — 2 года
Выбор дома-контейнера был лучшим решением для моей семьи. Мы получили комфортное жилье с минимальными затратами на строительство и обслуживание.
Сергей
Опыт владения домом-контейнером — полтора года
Давайте построим ваш дом мечты
Хотите построить дом из контейнеров? Свяжитесь с нами, чтобы получить индивидуальную консультацию. Наши специалисты ответят на все ваши вопросы и помогут вам создать идеальное пространство для ваших потребностей.